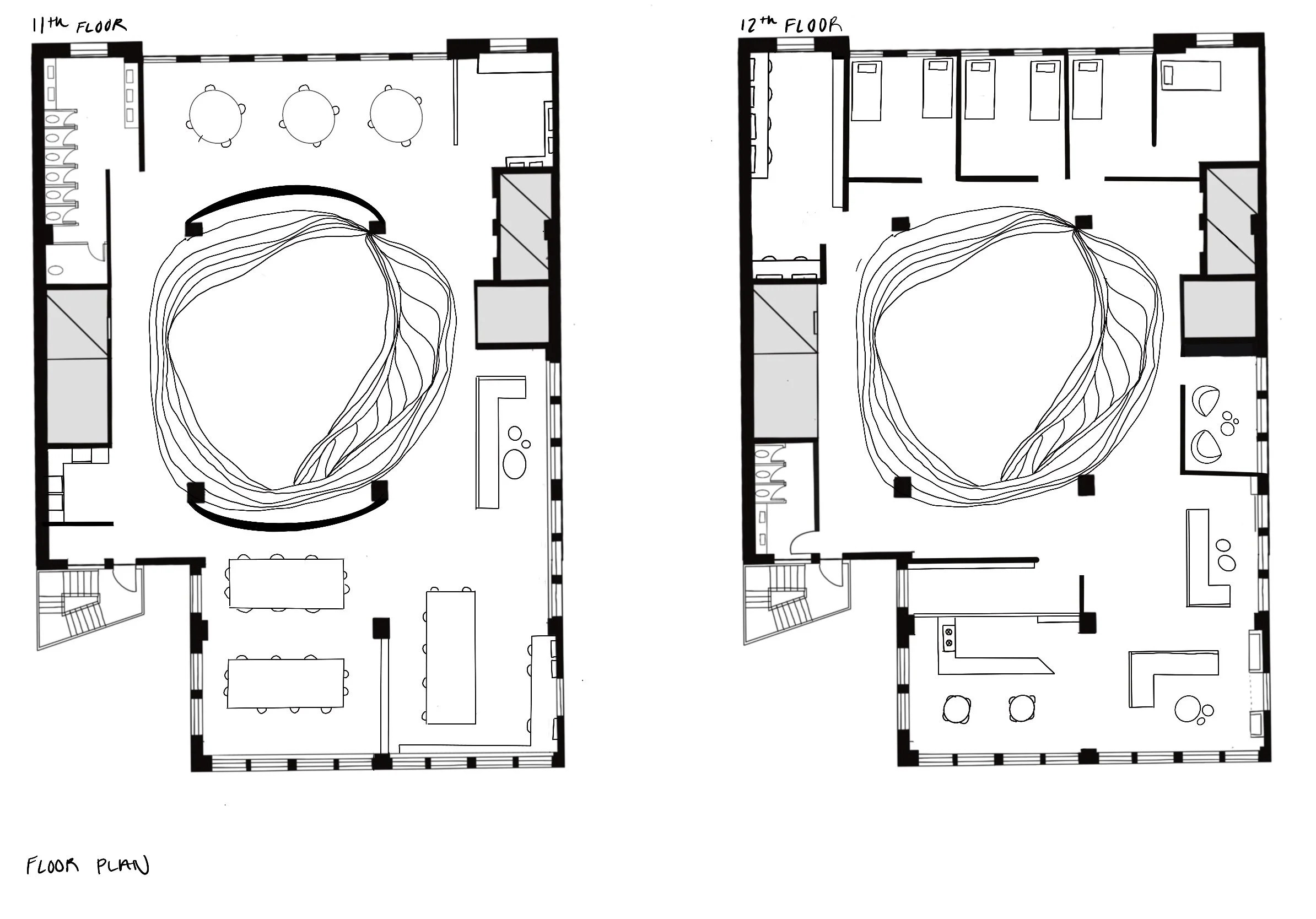
This live-work space is designed for architecture students, thoughtfully balancing spatial constraints with seamless flow. The 'live' and 'work' zones are distinctly defined yet harmoniously integrated to support focus and rejuvenation.
This live-work space is designed for architecture students, thoughtfully balancing spatial constraints with seamless flow. The 'live' and 'work' zones are distinctly defined yet harmoniously integrated to support focus and rejuvenation.